Skip To Content

2519 Ophelia Levi Ln

Round Rock, TX 78665
  • $340,990
  • STATUS: Active
  • ID#: 2167218
UPDATED: 120 min ago
$340,990
  • 3
    BEDS
  • 0.12
    ACRES
  • 2
    BATHS
  • 1
    1/2 BATHS
  • 1,567
    SQFT
  • $218
    $/SQFT
Neighborhood:
Type:
Townhouse
Built:
2025
County:
Area:

School Information

Elementary School:
Middle School:
High School:
School District:
Property listed by Dave Clinton of D.R. Horton, AMERICA'S Builder: (512) 345-4663.

Description

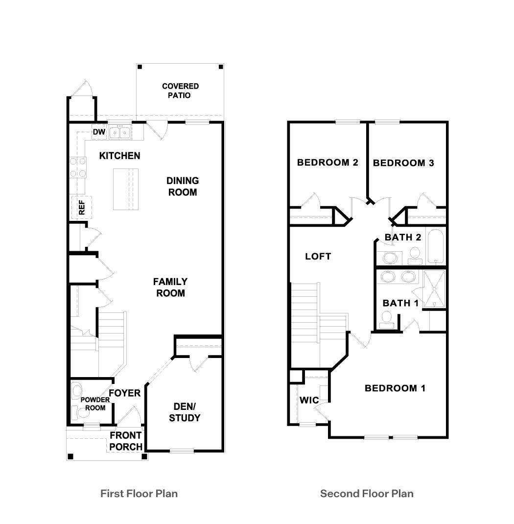
UNDER CONSTRUCTION - EST COMPLETION NOW!!!!!!!!!!!!!!!!!!!!! Photos are representative of plan and may vary as built. Take a look at the Smithwick floorplan at our Avery Centre community in Round Rock, TX. Designed with you in mind, this floorplan offers 1,567 square feet of living space across 3 bedrooms and 2.5 bathrooms. With 2 exterior elevations to choose from, you're sure to find the perfect design that aligns with your personal style. At the front of the home you'll find a powder bathroom and study area. Making your way towards the kitchen, the open concept family room and dining area is sure to impress. The kitchen features stainless steel appliances, white cabinets, and Silestone® kitchen countertops. From the dining area you'll catch a glimpse of your beautiful backyard and covered back patio. The two other bedrooms and a full bathroom are also located upstairs. Whether these room are used for a child's bedrooms, and office space, or home gym, the possibilities are endless. You'll also find the spacious main bedroom located towards the front of the home. The bedroom features an adjoined bathroom with a double vanity sink and walk-in shower. This home comes included with a professionally designed landscape package and a full irrigation system as well as our Home is Connected base package that offers devices such as a Video Doorbell, Deako Smart Light Switch, a Honeywell Thermostat, and more.

Monthly Payment Calculator



© 2025 Austin Board of REALTORS® (alternatively, from ACTRIS). All information provided is deemed reliable but is not guaranteed and should be independently verified. The Austin Board of REALTORS®, ACTRIS and their affiliates provide the MLS and all content therein “AS IS” and without any warranty, express or implied.The information provided is for consumers' personal, non-commercial use and may not be used for any purpose other than to identify prospective properties consumers may be interested in purchasing. Data last updated: 2025-11-19T00:00:55.813.

MLS Grid  logoBased on information submitted to the MLS GRID as of 2025-11-19T00:00:55.813 (date and time MLS GRID Data was obtained). All data is obtained from various sources and may not have been verified by broker or MLS GRID. Supplied Open House Information is subject to change without notice. All information should be independently reviewed and verified for accuracy. Properties may or may not be listed by the office/agent presenting the information. Click here for MLS GRID DMCA Notice
austin.benkinneyteam.com/homes/167295771
Print Image

2519 Ophelia Levi Ln Round Rock, TX 78665

  • Price: $340,990
  • Status: Active
  • On Site: Days
  • Updated: 120 min ago
  • ID#: 2167218
3
Beds
2
Baths
1
½ Baths
0.12
Acres
1,567
SQFT
$218
$/SQFT
2025
Built
Neighborhood:
Avery Centre
County:
Williamson
Area:
Round Rock
Elementary School:
Redbud
Middle School:
Hopewell
High School:
Stony Point
School District:
Round Rock ISD
Property Description
UNDER CONSTRUCTION - EST COMPLETION NOW!!!!!!!!!!!!!!!!!!!!! Photos are representative of plan and may vary as built. Take a look at the Smithwick floorplan at our Avery Centre community in Round Rock, TX. Designed with you in mind, this floorplan offers 1,567 square feet of living space across 3 bedrooms and 2.5 bathrooms. With 2 exterior elevations to choose from, you're sure to find the perfect design that aligns with your personal style. At the front of the home you'll find a powder bathroom and study area. Making your way towards the kitchen, the open concept family room and dining area is sure to impress. The kitchen features stainless steel appliances, white cabinets, and Silestone® kitchen countertops. From the dining area you'll catch a glimpse of your beautiful backyard and covered back patio. The two other bedrooms and a full bathroom are also located upstairs. Whether these room are used for a child's bedrooms, and office space, or home gym, the possibilities are endless. You'll also find the spacious main bedroom located towards the front of the home. The bedroom features an adjoined bathroom with a double vanity sink and walk-in shower. This home comes included with a professionally designed landscape package and a full irrigation system as well as our Home is Connected base package that offers devices such as a Video Doorbell, Deako Smart Light Switch, a Honeywell Thermostat, and more.
Exterior Features

Attached Garage YN Yes Covered Spaces 2 Direction Faces NE Exterior Features Private Yard Fencing Back YardFencedGate Foundation Details Slab Garage YN Yes Levels Two Lot Features Alley AccessLevel Lot Size Dimensions 76x20 Other Structures Garage(s) Parking Features AttachedDrivewayGarage Patio And Porch Features CoveredPatio Roof Shingle View None Waterfront Features None Waterfront YN No

Interior Features

Appliances DishwasherDisposalMicrowaveRange Cooling Central Air Fireplaces Total 0 Flooring CarpetVinyl Heating Central Interior Features Smart HomeSmart ThermostatWalk-In Closet(s) Laundry Location Laundry RoomMain Level Main Level Bedrooms 0 Num Dining 1 Num Living 1 Num Other Level Beds 3 Rooms Primary Bedroom (Second Level Walk-In Closet(s)) Kitchen (Main Level Breakfast BarCenter IslandPantry) Primary Bathroom (Second Level Walk-in Shower) Window Features Double Pane WindowsLow Emissivity WindowsScreensVinyl Windows

Property Features

Accessibility Features None Additional Parcels YN No Association Fee 112 Association Fee Frequency Monthly Association Fee Includes Common Area Maintenance Association YN Yes Community Features High Speed Internet Estimated Taxes 5796 Fema Flood Plain No Horse YN No Listing Terms CashConventionalFHATexas VetVA Loan New Construction YN Yes Pool Features None Pool Private YN No Property Condition New Construction Property Sub Type Townhouse Sewer Public Sewer Special Listing Conditions Standard Unit Style See Remarks Utilities Cable AvailableElectricity AvailableInternet-CablePhone AvailableSewer AvailableWater Available Water Source Public



© 2025 Austin Board of REALTORS® (alternatively, from ACTRIS). All information provided is deemed reliable but is not guaranteed and should be independently verified. The Austin Board of REALTORS®, ACTRIS and their affiliates provide the MLS and all content therein “AS IS” and without any warranty, express or implied.The information provided is for consumers' personal, non-commercial use and may not be used for any purpose other than to identify prospective properties consumers may be interested in purchasing. Data last updated: 2025-11-19T00:00:55.813.

MLS Grid  logoBased on information submitted to the MLS GRID as of 2025-11-19T00:00:55.813 (date and time MLS GRID Data was obtained). All data is obtained from various sources and may not have been verified by broker or MLS GRID. Supplied Open House Information is subject to change without notice. All information should be independently reviewed and verified for accuracy. Properties may or may not be listed by the office/agent presenting the information. Click here for MLS GRID DMCA Notice
 
https://bt-photos.global.ssl.fastly.net/austin/orig_boomver_1_2167218-2.jpg https://bt-photos.global.ssl.fastly.net/austin/orig_boomver_1_2167218-2.jpg https://bt-photos.global.ssl.fastly.net/austin/orig_boomver_1_2167218-2.jpg
Logo
Ben Kinney Real Estate Team
1801 S MoPac Expy, #100
Austin TX, 78746
Property listed by Dave Clinton of D.R. Horton, AMERICA'S Builder: (512) 345-4663.